ZpětÚvodNemovitosti LitoměřiceByty LitoměřiceProdej byty LitoměřiceProdej byty 4+kk LitoměřiceProdej důmyslně zrekonstruovaného bytu 4+kk s dvěma terasami a parkovacími místy na okraji města
Prodej důmyslně zrekonstruovaného bytu 4+kk s dvěma terasami a parkovacími místy na okraji města
Realitní kancelář RENO Vám v exkluzivním zastoupení majitele nabízí k prodeji tento výjimečný byt.
Popis nemovitosti
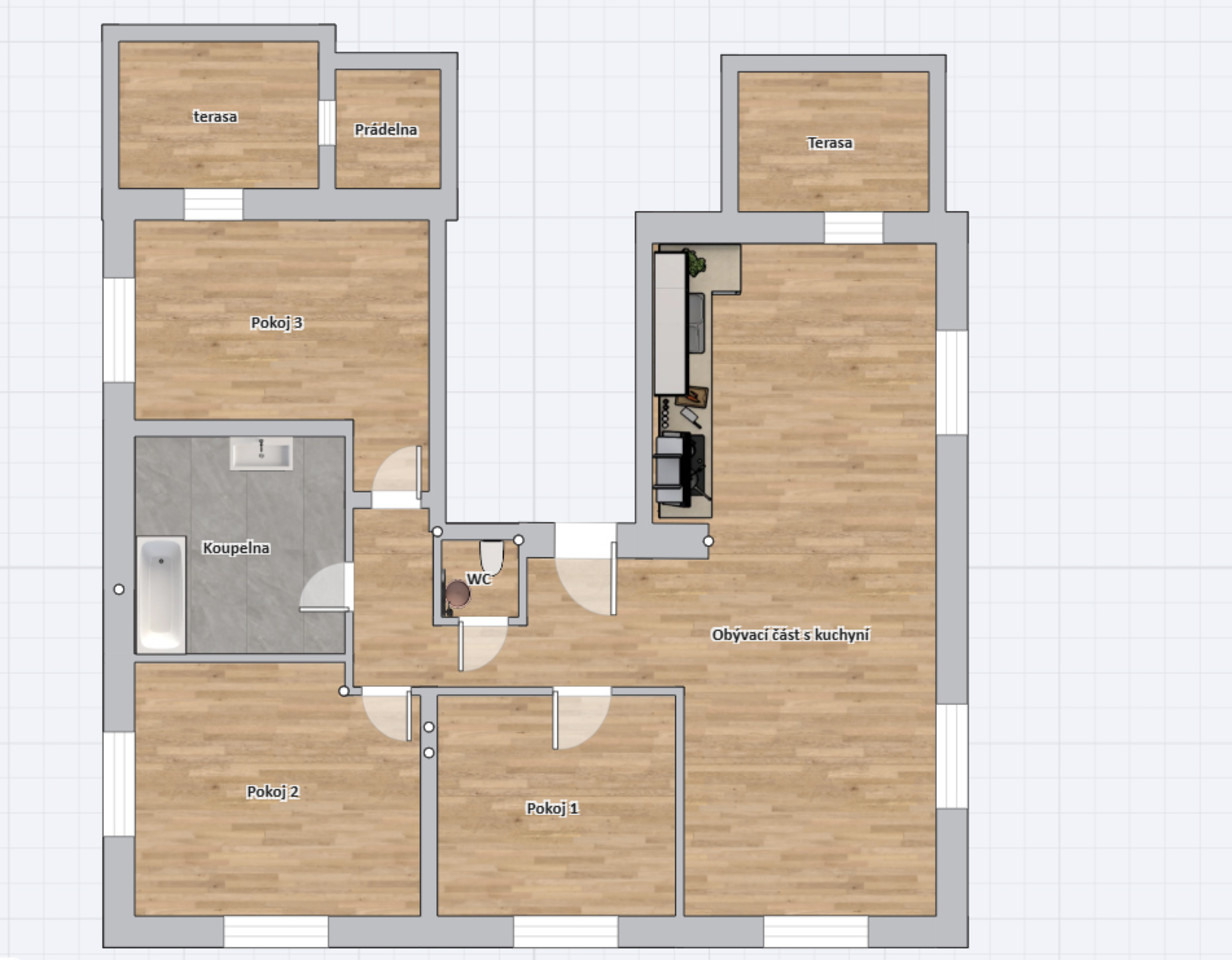
REZERVOVÁNO! Představte si, jak ráno otevřete dveře na terasu, v ruce šálek kávy a před sebou tichý výhled na okolní kopce a rozkvetlé zahrady. Přesně takový začátek dne vám tento byt může nabídnout každý den.
Jde o výjimečný byt s naprostým kouzlem — prostorný, klidný, po kompletní rekonstrukci — ...
| Cena: | 7.777.777 Kč(za nemovitost) |
|---|---|
| Lokalita: | Předměstí, Litoměřice, Ústecký |
| Stav nabídky: | rezervováno |
| Číslo: | 636 |
| Typ reality: | Byty 4+kk - Byty |
| Plocha: | 107 m2 |
Kontakt na makléře
Vlastnosti nemovitosti
| Terasa: | Ano |
|---|---|
| Sklep: | Ano |
| Parkoviště: | Ano |
| Služby: | Ano |
|---|---|
| Supermarket: | Ano |
| Obchody: | Ano |
| Pošta: | Ano |
| Lékař: | Ano |
| Škola: | Ano |
| Školka: | Ano |
| Dálnice: | Ano |
| MHD: | Ano |
| Autobus: | Ano |
| Železnice: | Ano |
| Internet: | Ano |
|---|
| Topení elektro: | Ano |
|---|---|
| Topení lokální: | Ano |
| Jímka: | Ano |
| Vodovod: | Ano |
| Elektro 230V: | Ano |
| Počet parkovacích míst: | 2 |
|---|---|
| Rok rekonstrukce: | 2020 |
| Počet bytů v domě: | 3 |
| Číslo podlaží v domě: | 2 |
| Počet podlaží pod zemí: | 1 |
| Celkový počet podlaží: | 4 |
| Umístění objektu: | kraj obce |
| Stav objektu: | velmi dobrý |
| Technologie výstavby: | cihlová |
| Vlastnictví: | osobní |
| Užitná plocha: | 93 m2 |
|---|---|
| Plocha sklep: | 11 m2 |
| Plocha terasa: | 11.45 m2 |
| Třída energetické náročnosti budovy: | G - Mimořádně nehospodárná |
|---|
Doplňující obsah
Podobné nabídky
Hledání nemovitosti
Nabídka nemovitostí
Kontaktujte nás
Realitní kancelář RENO
Zítkova 2
412 01 Litoměřice
Telefon:
602 348 139
724 123 276
E-mail: Info@reality-reno.cz
© 2026, Realitní kancelář RENO – všechna práva vyhrazena
Prohlášení o přístupnosti | Ochrana osobních údajů | Mapa stránek
Realitní software dodává eBRÁNA | Software a informační systém pro realitní kanceláře REALBrána | Nabídka nemovitostí RB Reality
























































